Venta, Casa adosada, Blanes

Girona, Blanes Mostrar en mapa
310.000 €
86
Oportunidad única de adquirir una vivienda con carácter en pleno centro del pueblo, situada a escasos metros de la iglesia, en una ubicación privilegiada y muy demandada.
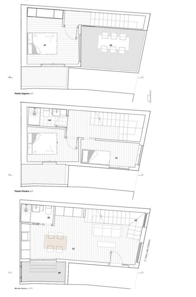
La casa se distribuye en tres plantas y combina funcionalidad, diseño y elementos originales que aportan personalidad a la vivienda.
En la planta baja encontramos un agradable salón-comedor con cocina integrada de la marca Alvic, con acceso a una terraza de 4 m , ideal como espacio exterior. Además de una práctica zona de lavadero.
La primera planta dispone de una habitación individual, una habitación doble y un baño completo con plato de ducha.
En la segunda planta se ubica una amplia habitación doble polivalente, con salida a una terraza de 11,17 m , desde la cual se disfrutan vistas abiertas a la iglesia, un valor añadido excepcional en una vivienda céntrica.
La vivienda está equipada con sistema de aerotermia, que garantiza un alto nivel de eficiencia energética y confort durante todo el año.
Cuenta con acabados de alta calidad: parquet de madera natural, puertas lacadas en blanco, electrodomésticos TEKA, grifería IMEX, azulejos de primera calidad y carpintería de aluminio en color beige. Se han conservado paredes originales de la casa, integradas con un diseño actual que refuerza su encanto.
Una vivienda muy especial, con encanto y diseño, ideal tanto como residencia habitual como segunda vivienda o excelente oportunidad de inversión.
Entrega prevista en el mes de septiembre.

Características generales

  • Blanes
  • Casa adosada

Especificaciones técnicas

  • 86
  • 86

Certificado energético

  • No disponible
  • No disponible
  • No disponible
  • Etiqueta de calificación energética
    ESCALA DE LA CALIFICACIÓN ENERGÉTICA

    Consumo de energía

    kW h m² / año

    Emisiones

    kg CO₂ m² / año

    A más eficiente
    B
    C
    D
    E
    F
    G menos eficiente
    Esta información se irá actualizando diariamente

Precio

Precio del inmueble:
310.000 €
Precio por m²:
3.605 €/m²
Avisame si baja de precio
Te avisaremos si el precio del inmueble baja.
Calcular hipoteca bancaria
Simulador de hipotecas CaixaBank

Puedes simular la cuota con la calculadora de hipotecas CaixaBank.

Ubicación

Girona, Blanes
Dirección aproximada por deseo del anunciante.
Information Image
Equipa tu vivienda con Facilitea

¿Ya elegiste tu hogar ideal? Equipa tu hogar con todo lo que necesitas para convertirlo en un espacio acogedor y funcional.

Contactar
Selecciona el motivo de contacto
Solicitar información del inmueble y financiación
Solicitar información del inmueble
Otro motivo de contacto
Añadir comentario (opcional)

Facilitea comunicará los datos facilitados al anunciante del inmueble para atender su solicitud. El anunciante los tratará en calidad de responsable y le informará de su tratamiento.