Ofrecido por CONSULTING INMOBILIARIO GILMAR S.A.

Venta, Casa adosada, Chiclana de la Frontera

Cádiz, Chiclana de la Frontera Mostrar en mapa
340.000 €
5 habs.
4 baños
201
OBRA NUEVA – Inicio de construcción en octubre y entrega estimada en un año.

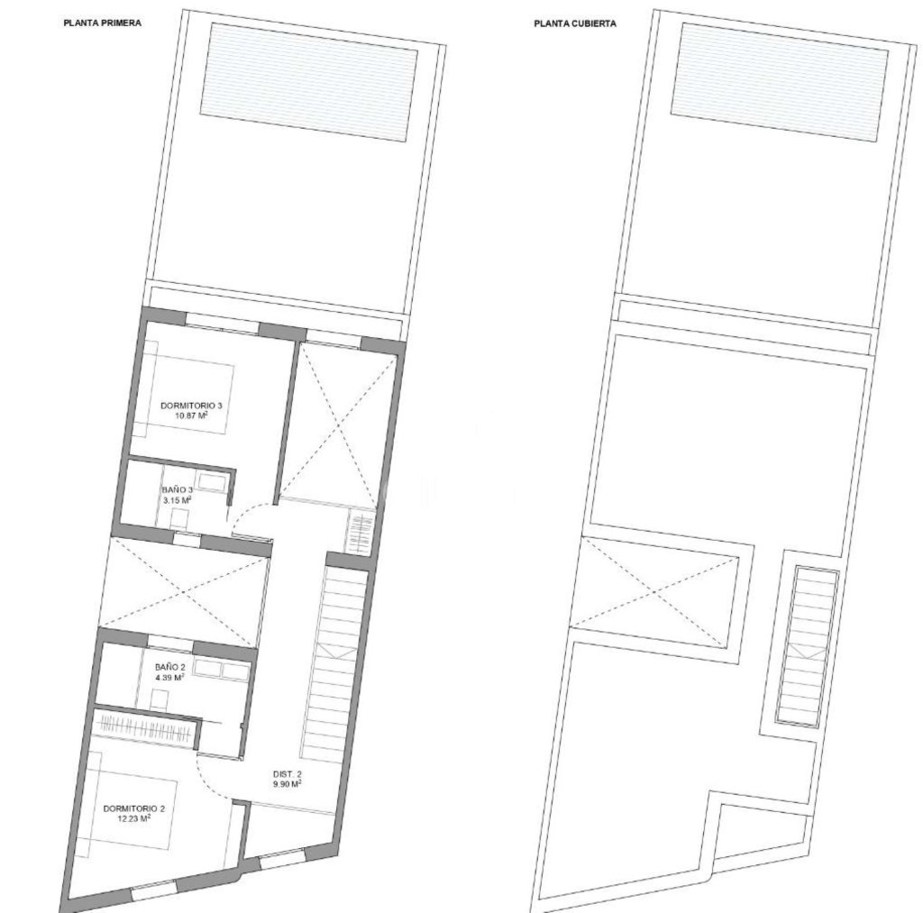
En el corazón de Chiclana de la Frontera, una de las localidades más emblemáticas de la Bahía de Cádiz, se presenta esta extraordinaria oportunidad: un chalet adosado distribuido en tres plantas, con una superficie construida de 201,44 m². Este inmueble, ideal para quienes buscan un proyecto de obra nueva, cuenta con 5 dormitorios y 4 baños, ofreciendo un espacio generoso para adaptarlo a tus necesidades y estilo de vida. Además, incluye una piscina privada, un lujo que añade un valor incalculable a la propiedad.

Este chalet adosado destaca por su potencial y su ubicación estratégica. La zona de Chiclana de la Frontera es conocida por su tranquilidad, sus amplias zonas residenciales y su cercanía a playas como La Barrosa, reconocida como una de las mejores de España. Además, cuenta con una excelente conectividad y servicios, lo que lo convierte en una opción ideal tanto para vivir como para invertir. A menos de 10 kilómetros, se encuentra el Colegio Público Tierno Galván, un centro educativo de prestigio en la zona.

En cuanto a las opciones de ocio y compras, el Centro Comercial Tartessus, a pocos minutos en coche, ofrece una amplia variedad de tiendas, restaurantes y servicios. Para quienes necesiten transporte público, las líneas de autobuses de la zona conectan Chiclana de la Frontera con Cádiz y otras localidades cercanas, asegurando una movilidad cómoda y eficiente. Aunque no cuenta con líneas de metro, la estación de trenes de San Fernando-Bahía Sur, a aproximadamente 20 minutos, ofrece conexiones de cercanías con toda la provincia.

El barrio donde se sitúa este inmueble combina la serenidad de un entorno residencial con la cercanía a todos los servicios necesarios, como supermercados, centros médicos y zonas deportivas. Además, la oferta gastronómica de Chiclana es inigualable, con una amplia selección de bares y restaurantes donde disfrutar de la cocina gaditana.

Características generales

  • Chiclana de la Frontera
  • Casa adosada
  • 5
  • 4

Especificaciones técnicas

  • 201
  • 114
  • 201

Certificado energético

  • No disponible
  • No disponible
  • No disponible
  • Etiqueta de calificación energética
    ESCALA DE LA CALIFICACIÓN ENERGÉTICA

    Consumo de energía

    kW h m² / año

    Emisiones

    kg CO₂ m² / año

    A más eficiente
    B
    C
    D
    E
    F
    G menos eficiente
    Esta información se irá actualizando diariamente

Precio

Precio del inmueble:
340.000 €
Precio por m²:
1.692 €/m²
Avisame si baja de precio
Te avisaremos si el precio del inmueble baja.
Calcular hipoteca bancaria
Simulador de hipotecas CaixaBank

Puedes simular la cuota con la calculadora de hipotecas CaixaBank.

Ubicación

Cádiz, Chiclana de la Frontera
Dirección aproximada por deseo del anunciante.
Information Image
Equipa tu vivienda con Facilitea

¿Ya elegiste tu hogar ideal? Equipa tu hogar con todo lo que necesitas para convertirlo en un espacio acogedor y funcional.

Contactar
Completa el formulario para contactar con el anunciante y ver su número de teléfono.
Selecciona el motivo de contacto
Solicitar información del inmueble y financiación
Solicitar información del inmueble
Otro motivo de contacto
Añadir comentario (opcional)

Facilitea comunicará los datos facilitados al anunciante del inmueble para atender su solicitud. El anunciante los tratará en calidad de responsable y le informará de su tratamiento.

Si lo prefieres, también puedes llamarlo al siguiente número de teléfono.
914329191
Ofrecido por CONSULTING INMOBILIARIO GILMAR S.A.