Ofrecido por Top Cala SL

Venta, Casa, Cabrera de Mar

Barcelona, Cabrera de Mar Mostrar en mapa
300.000 €
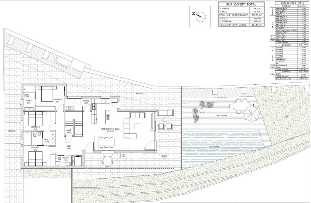
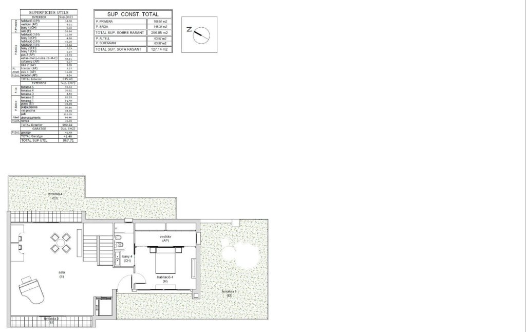
En pleno centro de Cabrera de Mar, presentamos esta excelente parcela llana de 684 m², formada por 2 parcelas, ubicada en una posición elevada sobre la calle que permite plantear de forma muy funcional la zona de garaje y el acceso a la vivienda.Una oportunidad muy interesante para quienes buscan construir una casa amplia, cómoda y bien orientada, en un entorno residencial consolidado, con todos los servicios a pie de pueblo y a tan solo 2,8 km del mar.Características urbanísticasLa parcela cuenta con una configuración muy atractiva para desarrollar una vivienda unifamiliar de alto nivel:Superficie de terreno: 684 m²Parcela llana, elevada respecto a la calleClave urbanística: 1BEdificabilidad: 410 m²Ocupación máxima: 205 m²Altura permitida: planta baja + 1 planta pisoSeparación a vial: 3 mSeparación a vecinos: 2 mFachada: 61 mOrientación surVistas al pueblo y a la montañaGracias a su edificabilidad y a su amplia fachada, esta parcela permite proyectar una vivienda luminosa, bien distribuida y con una presencia arquitectónica muy atractiva.Anteproyecto incluidoLa propiedad dispone de un estudio-anteproyecto para una vivienda unifamiliar de 384 m² construidos, de los cuales 257 m² serían sobre rasante, distribuida en:Planta garaje con altilloPlanta bajaPlanta pisoEl programa previsto contempla:4 habitaciones, de las cuales 3 son suites, una de ellas con vestidorSalón-comedor-cocina de 53 m², con salida directa al porche, jardín y piscina4 bañosSala polivalenteGimnasio-trasteroAscensorTerrazasPiscinaJardínUn planteamiento ideal para crear una vivienda familiar de diseño contemporáneo, funcional y preparada para disfrutar tanto del interior como de las zonas exteriores.UbicaciónSu ubicación es uno de sus grandes atractivos. Situada en el centro de Cabrera de Mar, a solo 400 metros del Ayuntamiento, permite disfrutar de la tranquilidad de un entorno residencial con la comodidad de tener cerca todos los servicios del día a día:Escuelas e institutoSupermercados, panaderías, carnicerías y pescaderíasFarmacias y centros de atención médicaZonas verdes, parques y actividades para toda la familiaUna parcela pensada para quienes quieren construir una casa a medida en uno de los pueblos más agradables del Maresme, combinando privacidad, vistas, orientación y cercanía al mar.Una oportunidad excelente para desarrollar una vivienda unifamiliar amplia, luminosa y con todas las comodidades, en una ubicación céntrica y muy bien conectada.

Características generales

  • Cabrera de Mar

Especificaciones técnicas

  • 684

Certificado energético

  • No disponible
  • No disponible
  • No disponible
  • Etiqueta de calificación energética
    ESCALA DE LA CALIFICACIÓN ENERGÉTICA

    Consumo de energía

    kW h m² / año

    Emisiones

    kg CO₂ m² / año

    A más eficiente
    B
    C
    D
    E
    F
    G menos eficiente
    Esta información se irá actualizando diariamente

Precio

Precio del inmueble:
300.000 €
Precio por m²:
439 €/m²
Avisame si baja de precio
Te avisaremos si el precio del inmueble baja.
Calcular hipoteca bancaria
Simulador de hipotecas CaixaBank

Puedes simular la cuota con la calculadora de hipotecas CaixaBank.

Ubicación

Barcelona, Cabrera de Mar
Dirección aproximada por deseo del anunciante.
Information Image
Equipa tu vivienda con Facilitea

¿Ya elegiste tu hogar ideal? Equipa tu hogar con todo lo que necesitas para convertirlo en un espacio acogedor y funcional.

Contactar
Completa el formulario para contactar con el anunciante y ver su número de teléfono.
Selecciona el motivo de contacto
Solicitar información del inmueble y financiación
Solicitar información del inmueble
Otro motivo de contacto
Añadir comentario (opcional)

Facilitea comunicará los datos facilitados al anunciante del inmueble para atender su solicitud. El anunciante los tratará en calidad de responsable y le informará de su tratamiento.

Si lo prefieres, también puedes llamarlo al siguiente número de teléfono.
972620016
Ofrecido por Top Cala SL