Ofrecido por BRUÑO&VENTURA IVESTMENT GROUP S.L

Venta, Casa rústica, Roda de Berà

Tarragona, Roda de Berà Mostrar en mapa
232.000 € 135.000 €
3 habs.
2 baños
90
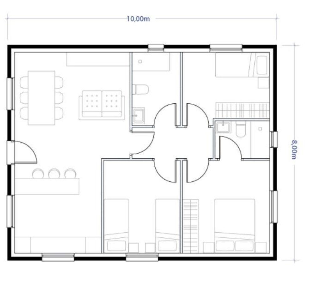
🏡 Parcela + Casa Modular MH 80 DISEÑO acabado Prime, llave en mano en Roda de Berà – Proyecto listo para construir. Disponemos de financiación.~¿Sueñas con diseñar tu propia casa sin complicaciones? Aquí tienes la oportunidad perfecta: una parcela de 330 m2 en Roda de Berà, lista para construir tu nuevo hogar modular MH 80 DISEÑO, acabado prime, con eficiencia, diseño y precio cerrado.~~🧱 PARCELA URBANA~Situada en una zona consolidada, admite una edificabilidad de hasta 247 m2. Ideal para viviendas unifamiliares modernas, bien comunicada y con todos los servicios.~~🏠 VIVIENDA MODULAR MH 80 DISEÑO acabado Prime, – INCLUIDA EN EL PRECIO TOTAL~Vivienda de diseño vanguardista y concepto abierto, distribuida en una planta baja de 80 m2 útiles.~~Incluye:~~Salón-comedor con cocina integrada (28,37 m2), no incluye mobiliario ~~Dormitorio principal ( 11,20 m2) , Baño dormitorio principal (2,85m2)~~Dormitorio 2 (9,84 m2)~~Baño 2: (4,91m2)~~Dormitorio 3: (8,32 m2)~~Distribuidor (3,43m2)~~Sistema constructivo industrializado MH System®~~Transporte, instalación y montaje incluidos~~Proyecto de ejecución, dirección facultativa, estudio geotécnico y topográfico incluidos~~NO INCLUYE:~ • Obras de adecuación del terreno ni movimiento de tierras~ • Mobiliario de cocina~ • Vallados, accesos, porches exteriores o jardín~ • Alta de suministros, acometidas ni consumo (agua, luz, saneamiento)~ • Licencia de obra, tasas municipales ni tributos~ • Cualquier modificación posterior al proyecto prediseñado original~~Alta eficiencia energética y posibilidad de packs de personalización (clima, baños, domótica, solar…)~~💡 ¿Y SI QUIERES PERSONALIZARLA?~Puedes añadir climatización, placas solares, paisajismo, interiorismo, domótica… ¡y te asesoramos en todo el proceso! También podemos ayudarte a conseguir financiación como autopromotor.~~💶 PRECIO CONJUNTO: 232.000 € (parcela + casa MH 80 DISEÑO acabado Prime)~Precio estimado para el conjunto completo en la zona. No incluye licencias municipales, tasas, ni acondicionamiento del terreno.~~📍 Ubicación ideal para tu nuevo hogar, a solo unos minutos del mar, con rápido acceso a la C-32, AP-7 y todos los servicios de Roda de Berà.~✨ Disponemos de más modelos de casas modulares y, si lo desea, diseñamos su vivienda totalmente a medida, adaptándonos a sus gustos, estilo de vida y presupuesto. En Yaencasa somos prescriptores oficiales de Modular Home. ¡Construya sin complicaciones y con todas las garantías!~~📸 Las imágenes incluidas son simulaciones 3D y no representan el estado actual de la parcela o vivienda. Reflejan opciones de diseño orientativas.~~📢 El precio indicado no incluye impuestos aplicables (AJD, ITP o IVA), ni los gastos derivados de notaría, registro y posibles costes de financiación.~~📱 Al solicitar información, usted autoriza expresamente a ser contactado desde un número móvil conforme a la Ley 11/2022 de medidas en materia de telecomunicaciones.

Características generales

  • Roda de Berà
  • Casa rústica
  • 3
  • 2

Especificaciones técnicas

  • 90
  • 330
  • 90

Certificado energético

  • No disponible
  • No disponible
  • No disponible
  • Etiqueta de calificación energética
    ESCALA DE LA CALIFICACIÓN ENERGÉTICA

    Consumo de energía

    kW h m² / año

    Emisiones

    kg CO₂ m² / año

    A más eficiente
    B
    C
    D
    E
    F
    G menos eficiente
    Esta información se irá actualizando diariamente

Precio

Precio del inmueble:
232.000 €
Precio por m²:
2.578 €/m²
Avisame si baja de precio
Te avisaremos si el precio del inmueble baja.
Calcular hipoteca bancaria
Simulador de hipotecas CaixaBank

Puedes simular la cuota con la calculadora de hipotecas CaixaBank.

Ubicación

Tarragona, Roda de Berà
Dirección aproximada por deseo del anunciante.
Information Image
Equipa tu vivienda con Facilitea

¿Ya elegiste tu hogar ideal? Equipa tu hogar con todo lo que necesitas para convertirlo en un espacio acogedor y funcional.

Contactar
Completa el formulario para contactar con el anunciante y ver su número de teléfono.
Selecciona el motivo de contacto
Solicitar información del inmueble y financiación
Solicitar información del inmueble
Otro motivo de contacto
Añadir comentario (opcional)

Facilitea comunicará los datos facilitados al anunciante del inmueble para atender su solicitud. El anunciante los tratará en calidad de responsable y le informará de su tratamiento.

Si lo prefieres, también puedes llamarlo al siguiente número de teléfono.
977592458
Ofrecido por BRUÑO&VENTURA IVESTMENT GROUP S.L