Ofrecido por Inmo Sierranorte 2010 SL

Venta, Casas, Madrid

398.000 €
14 habs.
6 baños
720
Edificio ideal para FLEX LIVING y CO-LIVING
"OCASIÓN" LOZOYUELA alberga la próxima construcción del HOSPITAL Sierra Norte y del edificio de la SEDE ADMINISTRATIVA de la Sierra Norte, que traerá elevada demanda de vivienda y la "necesidad de oferta" de flexibles formas de alojamiento y alquiler.

SE VENDE En el centro del Municipio de LOZOYUELA, Edificio (Casona) para restaurar y convertir en HOTELERO o NEGOCIO DE FLEX LIVING y CO-LIVING.

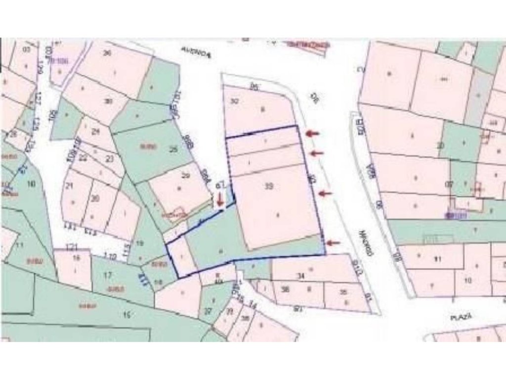
Ubicado en la Avda. principal del pueblo, en la zona CLAVE y recién rehabilitada del Pueblo.
Tiene 702 m2 construidos y 1.368 m2 construibles, en dos plantas, sobrado completo y sótano (Aparcamiento), todo ello en un solar de 600 m2, con 23 m de fachada, con doble acceso de vehículos por la avenida y por la trasera del edificio, tambien desde la Avda. y cuenta con un amplio patio trasero.

Con protección básica, que permite su reconstrucción respetando elementos (Dinteles, Jambas y fisonomía), así están reconstruidos varios edificios en la Avda. de Madrid de Lozoyuela.

Uso Hotelero, en edificio exclusivo, permitido en las Normas Urbanísticas, que, con sus características especiales y únicas logra el máximo aprovechamiento en el centro, la comodidad de sus dobles accesos, aparcamiento y su propio patio/jardín interior.

URBANISMO:
- Catalogado A4 en Normas Urbanísticas, que permite derribo con respeto y recuperación de Jambas y dinteles y similar fisonomía. Hay seis edificios en Lozoyuela que ya han derribado y reconstruido, es decir, el camino está hecho.

LOZOYUELA, pueblo con encanto situado en el km 68 de la A-1 (Madrid-Burgos) y a tan sólo a 7 kms de:
- Buitrago de Lozoya y su piscina de Riosequillo,
- La Cabrera y su "Pico de la Miel",
- el Embalse del Atazar o la presa de Puentes Viejas.

Pregúntanos por posibilidades para remodelar y montar tu negocio en el centro de Lozoyuela (Inmueble único)
Fantástico turismo rural en la zona, rutas a caballo, pantanos, senderismo, deportes de naturaleza..."
SN 2010 - "Un cambio de vida".
NO COBRAMOS HONORARIOS AL COMPRADOR.

Preguntanos por facilidades de financiación.

Características generales

  • 14
  • 6

Especificaciones técnicas

  • 720
  • 593
  • 720

Certificado energético

  • No disponible
  • No disponible
  • No disponible
  • Etiqueta de calificación energética
    ESCALA DE LA CALIFICACIÓN ENERGÉTICA

    Consumo de energía

    kW h m² / año

    Emisiones

    kg CO₂ m² / año

    A más eficiente
    B
    C
    D
    E
    F
    G menos eficiente
    Esta información se irá actualizando diariamente

Precio

Precio del inmueble:
398.000 €
Precio por m²:
553 €/m²
Avisame si baja de precio
Te avisaremos si el precio del inmueble baja.
Calcular hipoteca bancaria
Simulador de hipotecas CaixaBank

Puedes simular la cuota con la calculadora de hipotecas CaixaBank.

Ubicación

Madrid
Dirección aproximada por deseo del anunciante.
Information Image
Equipa tu vivienda con Facilitea

¿Ya elegiste tu hogar ideal? Equipa tu hogar con todo lo que necesitas para convertirlo en un espacio acogedor y funcional.

Contactar
Completa el formulario para contactar con el anunciante y ver su número de teléfono.
Selecciona el motivo de contacto
Solicitar información del inmueble y financiación
Solicitar información del inmueble
Otro motivo de contacto
Añadir comentario (opcional)

Facilitea comunicará los datos facilitados al anunciante del inmueble para atender su solicitud. El anunciante los tratará en calidad de responsable y le informará de su tratamiento.

Si lo prefieres, también puedes llamarlo al siguiente número de teléfono.
918680287
Ofrecido por Inmo Sierranorte 2010 SL