Ofrecido por Hermanos Ramon y Emilio Rodriguez de Trujillo, S.l

Venta, Piso, Cádiz

Cádiz, Cádiz Mostrar en mapa
285.000 €
1 habs.
1 baños
63
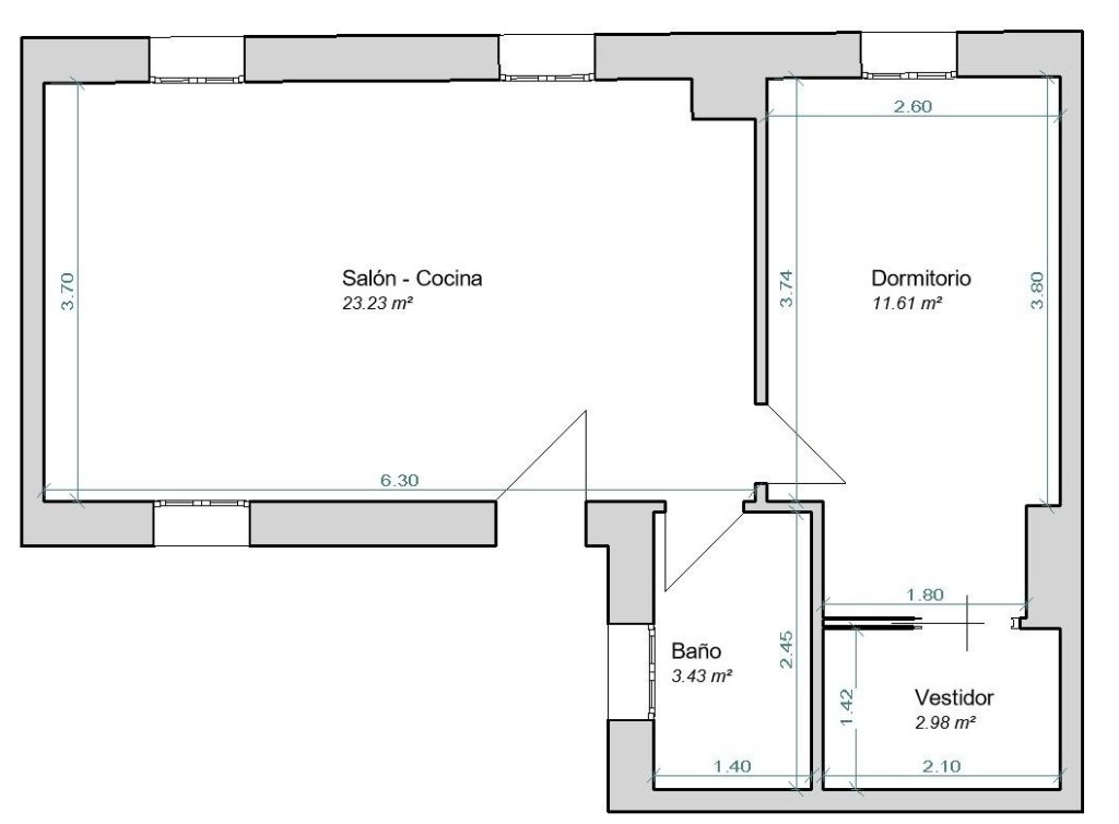
Magnífica vivienda ático con terraza privada en pleno centro de Cádiz en las inmediaciones del barrio del Mentidero y a escasos metros del Paseo de la Alameda Apodaca y Plaza de San Antonio. La vivienda cuenta con un dormitorio muy amplio con vestidor. Salón amplio con cocina americana. Cuarto de baño completo con placa de ducha. Todas las estancias luminosas y con ventilación directa al exterior. La vivienda cuenta además con terraza de 19 m2 de uso privativo en la planta superior a la vivienda con toma de electricidad y de agua por lo que podrá tomar el sol tranquilamente y refrescarse en cualquier momento. Construcción de 2019 fruto de una rehabilitación integral. Edificio con ascensor.~~* Gastos, impuestos y honorarios de la agencia no incluidos en el precio.~~Si estás interesado en esta propiedad pero tienes que vender, contacta con nosotros, te ayudamos a encontrar comprador para tu vivienda.~~Periodo de validez de la publicación 31/12/2025

Características generales

  • Cádiz
  • Piso
  • 1
  • 1

Especificaciones técnicas

  • 63
  • 11
  • 63

Certificado energético

  • No disponible
  • E 95.51 kWh/m² año
  • E 17.88 kg CO2/m² año
  • Etiqueta de calificación energética
    ESCALA DE LA CALIFICACIÓN ENERGÉTICA

    Consumo de energía

    kW h m² / año

    Emisiones

    kg CO₂ m² / año

    A más eficiente
    B
    C
    D
    E
    95.5
    17.9
    F
    G menos eficiente
    Esta información se irá actualizando diariamente
Ascensor

Precio

Precio del inmueble:
285.000 €
Precio por m²:
4.524 €/m²
Avisame si baja de precio
Te avisaremos si el precio del inmueble baja.
Calcular hipoteca bancaria
Simulador de hipotecas CaixaBank

Puedes simular la cuota con la calculadora de hipotecas CaixaBank.

Ubicación

Cádiz, Cádiz
Dirección aproximada por deseo del anunciante.
Information Image
Equipa tu vivienda con Facilitea

¿Ya elegiste tu hogar ideal? Equipa tu hogar con todo lo que necesitas para convertirlo en un espacio acogedor y funcional.

Contactar
Completa el formulario para contactar con el anunciante y ver su número de teléfono.
Selecciona el motivo de contacto
Solicitar información del inmueble y financiación
Solicitar información del inmueble
Otro motivo de contacto
Añadir comentario (opcional)

Facilitea comunicará los datos facilitados al anunciante del inmueble para atender su solicitud. El anunciante los tratará en calidad de responsable y le informará de su tratamiento.

Si lo prefieres, también puedes llamarlo al siguiente número de teléfono.
956258606
Ofrecido por Hermanos Ramon y Emilio Rodriguez de Trujillo, S.l
También te puede gustar