Venta, Piso, Ferreries

Islas Baleares, Ferreries Mostrar en mapa
236.000 €
1 habs.
1 baños
56
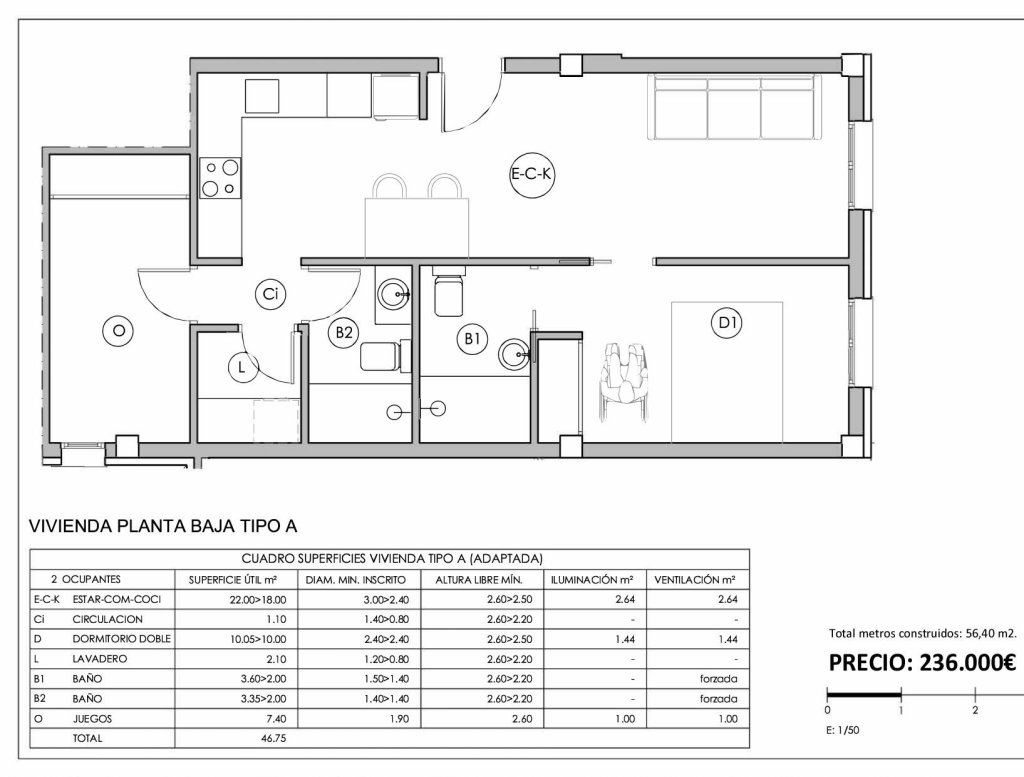
ReMax Grup Direct Collection presenta:~~En Ferreries, la localidad más cercana a Ciudadela y a 30 minutos aproximadamente del aeropuerto de la isla, les ofrecemos esta espectacular promoción de pisos de nueva construcción al alcance de todos los bolsilos pues tenemos pisos de todas las modalidades.~~SE COMPRAN SOBRE PLANO ~~Posibilidad de adquirir plaza de parking en el inmueble a 25.000€~Parking + trastero pequeño 30.000€~Parking+trastero grande 35.000€~~A PARTIR DE 236.000€ las diferentes opciones son:~~Tipo A: PLANTA BAJA TIPO A CON ACCESO PARA MINUSVALIDOS~Consta de 1 habitación doble con baño en suite, salón comedor con cocina americana, un segundo baño de tres piezas, lavadero y sala/hab multifuncional. Superficie : construida 56,40m2 , útil: 46,75m2. PVP 236000€~~Tipo B: PLANTA BAJA TIPO B CON PATIO~Consta de dos habitaciones dobles una con baño en suite, salón comedor con cocina independiente, segundo baño de tres piezas y sala/hab multifuncional con salida al patio.~Superfície: construida 60.35m2 , útil: 48.40m2 PVP 242000€~~TIPO J: PLANTA BAJA TIPO J CON TERRAZA CUBIERTA Y PATIO~Consta de dos habitaciones (una doble con baño en suite y una individual) salón comedor con cocina americana, segundo baño de tres piezas , y terraza cubierta que da a un gran patio de 20m2.~Superficie: construida 58.95m2 , útil: 47.35m2 PVP 245000€~~TIPO L:: VIVIENDAS 1ª-2ª Y 3ª PLANTA CON TERRAZA CUBIERTA~Consta de dos habitaciones (una doble con baño en suite y una individual) salón comedor con cocina americana, segundo baño de tres piezas , y terraza cubierta de 4.35m2~Superfíce: construida 58.95m2 , útil: 47m2 PVP: 235000€~~TIPO E: VIVIENDAS 1ª-2º y3ª PLANTA~Consta de dos habitaciones DOBLES (una con baño en suite), salón comedor , cocina independiente, segunda baño de tres piezas, sala/hab multifuncional.~Superfíce: construida 78.60m2 , útil: 65.05m2 PVP 320000€~~~Excelentes acabados, mejor ubicación muy cerca de todos los servicios que Ferreries ofrece, p ueblo lleno de vida durante todo el año, muy bien comunicada la promoción tanto por carretera como por servicio publico de autobuses.~~Esta promoción es una buena oportunidad para aquellos que buscan una propiedad nueva a un buen precio o para invertir ~~En ReMax Grup Direct Collection les estamos esperando . Contáctenos

Características generales

  • Ferreries
  • Piso
  • 1
  • 1

Especificaciones técnicas

  • 56
  • 56

Certificado energético

  • No disponible
  • No disponible
  • No disponible
  • Etiqueta de calificación energética
    ESCALA DE LA CALIFICACIÓN ENERGÉTICA

    Consumo de energía

    kW h m² / año

    Emisiones

    kg CO₂ m² / año

    A más eficiente
    B
    C
    D
    E
    F
    G menos eficiente
    Esta información se irá actualizando diariamente

Precio

Precio del inmueble:
236.000 €
Precio por m²:
4.214 €/m²
Avisame si baja de precio
Te avisaremos si el precio del inmueble baja.
Calcular hipoteca bancaria
Simulador de hipotecas CaixaBank

Puedes simular la cuota con la calculadora de hipotecas CaixaBank.

Ubicación

Islas Baleares, Ferreries
Dirección aproximada por deseo del anunciante.
Information Image
Equipa tu vivienda con Facilitea

¿Ya elegiste tu hogar ideal? Equipa tu hogar con todo lo que necesitas para convertirlo en un espacio acogedor y funcional.

Contactar
Selecciona el motivo de contacto
Solicitar información del inmueble y financiación
Solicitar información del inmueble
Otro motivo de contacto
Añadir comentario (opcional)

Facilitea comunicará los datos facilitados al anunciante del inmueble para atender su solicitud. El anunciante los tratará en calidad de responsable y le informará de su tratamiento.

También te puede gustar