Ofrecido por COSTA BLANCA TURIS SERVICE SLU

Venta, Piso, Torrevieja

Alicante, Torrevieja Mostrar en mapa
459.000 € 900 €
2 habs.
2 baños
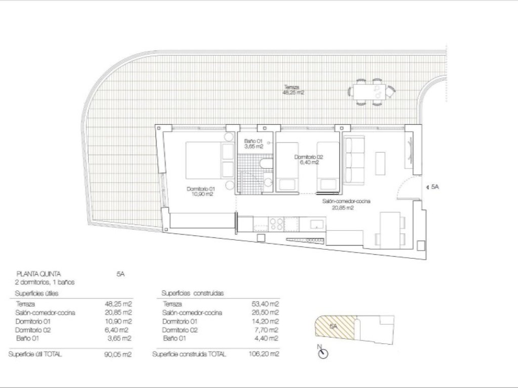
APARTAMENTOS Y ÁTICOS DE OBRA NUEVA CERCA DE LA PLAYA EN TORREVIEJA

Apartamentos de obra nueva con una de las mejores ubicaciones que se pueden encontrar, situados a 50 metros de la playa de Los Locos.

Residencial consiste apartamentos de 2 y 3 dormitorios y áticos de 1 y 2 dormitorios, salón diáfano con amplia distribución, cocina equipada con electrodomésticos de primeras marcas y armarios empotrados, baños completos con calefacción por suelo radiante.

Complejo residencial de obra nueva con diseño moderno y acabados de alta calidad.

Torreviejas Playa de Los Locos cuenta con un agradable paseo marítimo con gran variedad de bares, restaurantes y chiringuitos donde poder saborear auténticas paellas españolas.

Torrevieja es una ciudad española de la provincia de Alicante, en la Costa Blanca.
Es conocida por su clima y su costa típicamente mediterráneos. Cuenta con paseos marítimos con complejos turísticos a lo largo de sus playas de arena.

El pequeño Museo del Mar y de la Sal alberga exposiciones sobre la historia pesquera y salinera de la ciudad.

En el interior, el Parque Natural de las Lagunas de La Mata-Torrevieja cuenta con senderos y dos lagunas saladas, una rosa y otra verde.

El aeropuerto de Alicante está a 40 minutos y el de Murcia, a 1 hora.
#ref:N7194

Características generales

  • Torrevieja
  • Piso
  • 2
  • 2

Certificado energético

  • No disponible
  • B
  • No disponible
  • Etiqueta de calificación energética
    ESCALA DE LA CALIFICACIÓN ENERGÉTICA

    Consumo de energía

    kW h m² / año

    Emisiones

    kg CO₂ m² / año

    A más eficiente
    B
    C
    D
    E
    F
    G menos eficiente
    Esta información se irá actualizando diariamente
Aire acondicionado

Precio

Precio del inmueble:
459.000 €
Precio por m²:
--/m²
Avisame si baja de precio
Te avisaremos si el precio del inmueble baja.
Calcular hipoteca bancaria
Simulador de hipotecas CaixaBank

Puedes simular la cuota con la calculadora de hipotecas CaixaBank.

Ubicación

Alicante, Torrevieja
Dirección aproximada por deseo del anunciante.
Information Image
Equipa tu vivienda con Facilitea

¿Ya elegiste tu hogar ideal? Equipa tu hogar con todo lo que necesitas para convertirlo en un espacio acogedor y funcional.

Contactar
Completa el formulario para contactar con el anunciante y ver su número de teléfono.
Selecciona el motivo de contacto
Solicitar información del inmueble y financiación
Solicitar información del inmueble
Otro motivo de contacto
Añadir comentario (opcional)

Facilitea comunicará los datos facilitados al anunciante del inmueble para atender su solicitud. El anunciante los tratará en calidad de responsable y le informará de su tratamiento.

Si lo prefieres, también puedes llamarlo al siguiente número de teléfono.
965709042
Ofrecido por COSTA BLANCA TURIS SERVICE SLU
También te puede gustar