Ofrecido por CONSTRUCCIONES Y REFORMAS REHOGAR, S.L

Venta, Piso, Villalbilla

Madrid, Villalbilla Mostrar en mapa
245.000 €
2 habs.
1 baños
56
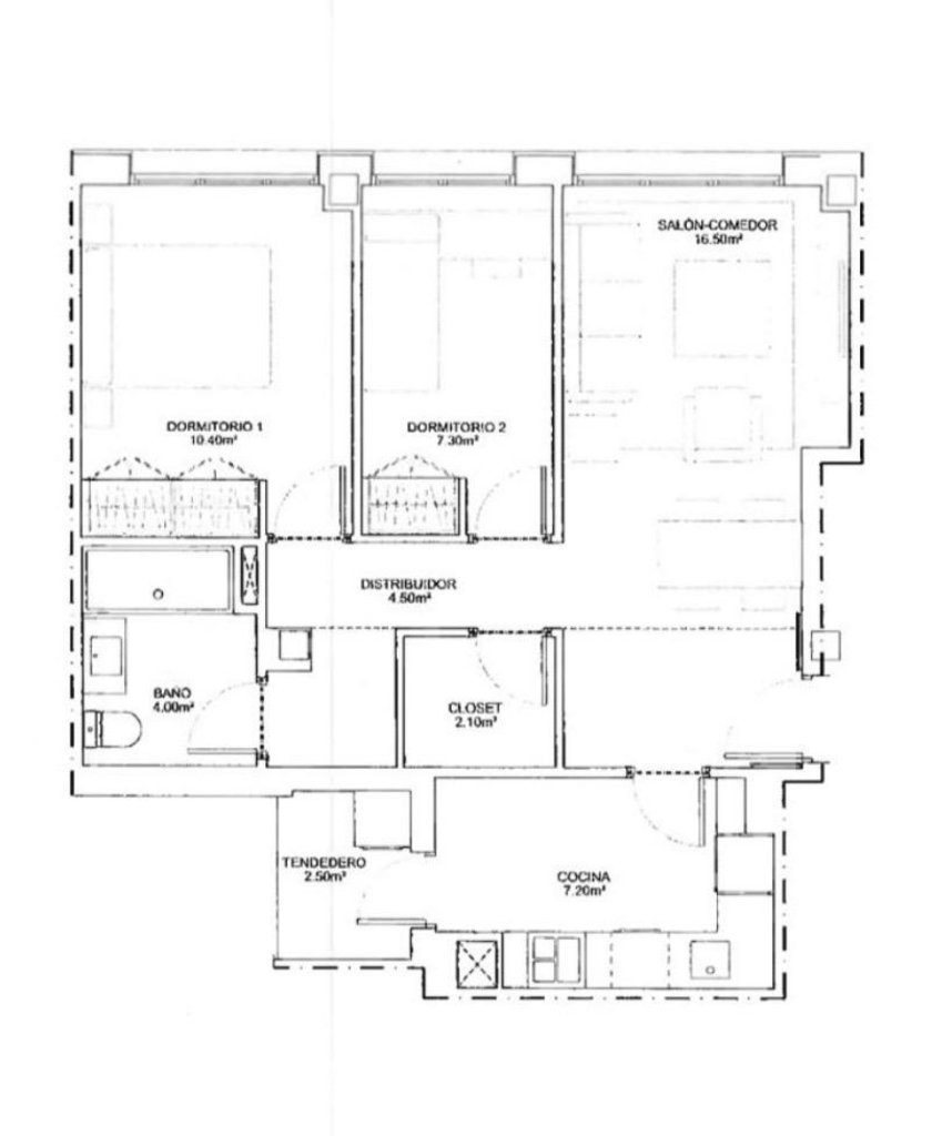
Alcalá Inmobiliaria presenta este magnífico piso a estrenar en la zona de El Viso, Villalbilla. Una vivienda moderna, luminosa y funcional de 68,66 m² construidos y 55,57 m² útiles (según planos), que incluye plaza de garaje y trastero, dentro de una urbanización privada con piscina para adultos e infantil, zona infantil y amplias zonas comunes perfectas para disfrutar del día a día, entrega a finales de 2026.Al acceder, nos recibe un cómodo vestíbulo con armario empotrado, desde el cual se abre paso a la cocina americana, moderna y práctica, abierta al salón-comedor, creando un ambiente diáfano y acogedor ideal para compartir momentos en familia. La cocina cuenta además con terraza tendedero, muy útil para el día a día.Desde el salón, un pasillo distribuidor nos conduce a la zona de descanso, compuesta por dos dormitorios con armarios empotrados y un baño completo.Entre sus calidades destacan los suelos de tarima AC4, gres cerámico en cocina y baños, carpintería exterior en PVC o aluminio con rotura de puente térmico, puerta de entrada acorazada, carpintería interior lacada en blanco, pintura lisa, y caldera individual de gas natural para calefacción y agua caliente. Además, dispone de instalación solar térmica como apoyo al sistema de agua caliente y preinstalación de aire acondicionado por splits (salón y dormitorios) .Ubicada en El Viso, una zona de gran expansión y crecimiento, rodeada de todos los servicios necesarios para tu comodidad: farmacias, autobús, supermercados, colegios, instituto, bares, restaurantes, gimnasio, comercios, zonas verdes, parques.... Un entorno tranquilo, moderno y con excelentes comunicaciones, ideal para quienes buscan calidad de vida sin renunciar a la cercanía con Alcalá de Henares.Un piso pensado para quienes desean estrenar hogar en un entorno tranquilo, moderno y bien comunicado, con todas las comodidades que ofrece una urbanización actual.¡No dejes pasar esta oportunidad de hacer realidad tus sueños en una ubicación inmejorable! Contáctanos hoy mismo para obtener más información.NO COBRAMOS COMISIÓN A COMPRADORESNos encargamos de toda la gestión de la compraY además, ponemos a tu disposición nuestro departamento de hipotecas totalmente gratuito para buscarte las mejores condiciones del mercado.¿Quieres saber cuanto se te quedaría de letra al mes?¿Quieres saber que impuestos conlleva una compra-venta?LLÁMANOS SIN COMPROMISO Y PROGRAMAREMOS UNA VISITALos metros de la vivienda están contrastados según catastro y registro. El mobiliario y artículos que aparecen en el inmueble NO son vinculantes y pueden NO estar incluidos Este anuncio puede cometer erroresEn los precios de venta NO están incluidos impuestos legales ni gastos de escrituración.

Características generales

  • Villalbilla
  • Piso
  • 2
  • 1

Especificaciones técnicas

  • 56
  • 56

Certificado energético

  • No disponible
  • No disponible
  • No disponible
  • Etiqueta de calificación energética
    ESCALA DE LA CALIFICACIÓN ENERGÉTICA

    Consumo de energía

    kW h m² / año

    Emisiones

    kg CO₂ m² / año

    A más eficiente
    B
    C
    D
    E
    F
    G menos eficiente
    Esta información se irá actualizando diariamente
Ascensor
Piscina común

Precio

Precio del inmueble:
245.000 €
Precio por m²:
4.375 €/m²
Avisame si baja de precio
Te avisaremos si el precio del inmueble baja.
Calcular hipoteca bancaria
Simulador de hipotecas CaixaBank

Puedes simular la cuota con la calculadora de hipotecas CaixaBank.

Ubicación

Madrid, Villalbilla
Dirección aproximada por deseo del anunciante.
Information Image
Equipa tu vivienda con Facilitea

¿Ya elegiste tu hogar ideal? Equipa tu hogar con todo lo que necesitas para convertirlo en un espacio acogedor y funcional.

Contactar
Completa el formulario para contactar con el anunciante y ver su número de teléfono.
Selecciona el motivo de contacto
Solicitar información del inmueble y financiación
Solicitar información del inmueble
Otro motivo de contacto
Añadir comentario (opcional)

Facilitea comunicará los datos facilitados al anunciante del inmueble para atender su solicitud. El anunciante los tratará en calidad de responsable y le informará de su tratamiento.

Si lo prefieres, también puedes llamarlo al siguiente número de teléfono.
918877041
Ofrecido por CONSTRUCCIONES Y REFORMAS REHOGAR, S.L
También te puede gustar